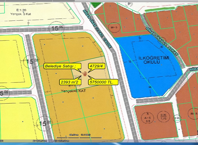
Çorum Belediyesi Basın ve Halkla İlişkiler Müdürlüğünden yapılan açıklamada; “Mülkiyeti Belediyemize ait, Silm Kent bölgesi Kuruçay Mevkiinde bulunan imar planında 2 kat konut alanı işaretli 7021,28 metrekare arsayı ve Gülabibey Mahallesinde bulunan 8 kat ticari konut işaretli 2393,09 metrekare arsayı 2886 Sayılı Kanunun 45. Maddesi’ne göre açık teklif arttırma usulü ile en az %50’si peşin kalanı en fazla 8 taksitle satılacaktır” denildi. 20.07.2022 Çarşamba günü Saat: 14.30’da Çorum Belediyesi Meclis Salonunda yapılacak ihaleye girecekler satılacak arsalara ait listeye https://ihale.corum.bel.tr/ihale/kurucay-ve-gulabibey-mahallesinde-2-tasinmazin-ayri-ayri-satis-ihalesi internet adresinden ulaşabilirler.







Çorum FK evinde kazandı
Darp edildikten sonra gasp edildi!
Nefes borusuna çilek takıldı kurye kurtardı
Çorumlu Başsavcı Türkiye’ye örnek oldu
Çorum’da 63 yıldır bakıra hayat veriyor
